
Пресс-центр
Новости компании
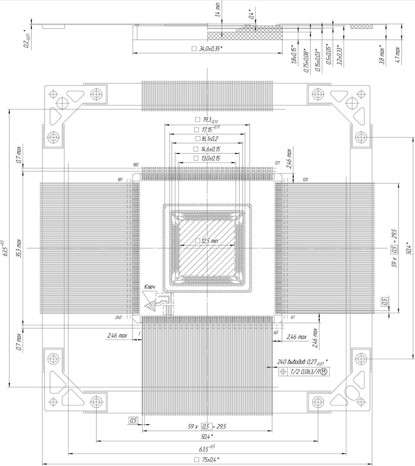
Металлокерамический корпус Мелон-240
(Тип CQFP)
Конструктивное исполнение: Металлокерамический 240-выводной корпус типа 4 по ГОСТ Р 54844-2011. Вывода располагаются по четырем сторонам корпуса.
Состав корпуса: Корпус состоит из основания с выводной рамкой и крышки. Покрытие крышки Хим.Н3.
Все открытые металлизированные поверхности и металлические части основания корпуса имеют золотое покрытие.
Технические характеристики
|
Количество выводов |
240 |
|
Количество контактных площадок |
240 |
|
Шаг выводов, мм |
0,5 |
|
Габаритные размеры тела корпуса, не более, мм |
34,35х34,35х4,1 |
|
Размер монтажной площадки корпуса, не менее, мм |
12,5х12,5 |
|
Глубина монтажного колодца, мм |
0,75±0,08 |
|
Масса основания корпуса, не более, г |
17 |
|
Масса крышки, не более, г |
0,7 |
|
Способ герметизации |
Контактная шовная сварка |
|
Конструктивные особенности |
МП металлизирована. 1 исполнение: все элементы изолированы. 2 исполнение: МП соединена с выводом № 1 |
|
Расположение выводов |
По 4-м сторонам |
|
Покрытие металлизированных поверхностей и металлических частей основания |
Н2.Зл3 |
|
Максимальное значение повышенной рабочей температуры среды при эксплуатации, С |
+155 |
|
Минимальное значение пониженной температуры среды при эксплуатации, транспортировании и хранении, С |
–60 |
|
Значение атмосферного пониженного давления при эксплуатации, Па (мм рт.ст.) |
1,3х10-4 (1х10-6) |
|
Значение повышенного давления при эксплуатации, Па (мм рт.ст.) |
5,1х105 (3800) |
Значения электрических параметров
|
Сопротивление изоляции между изолированными токопроводящими элементами корпуса в нормальных климатических условиях (при постоянном напряжении 100 В), не менее, Ом |
1х108 |
|
Изоляция между изолированными токопроводящими элементами корпуса должна выдерживать (в нормальных климатических условиях без пробоя и поверхностного перекрытия) испытательное напряжение, В |
200 |
Габаритный чертеж

